Ua
W House
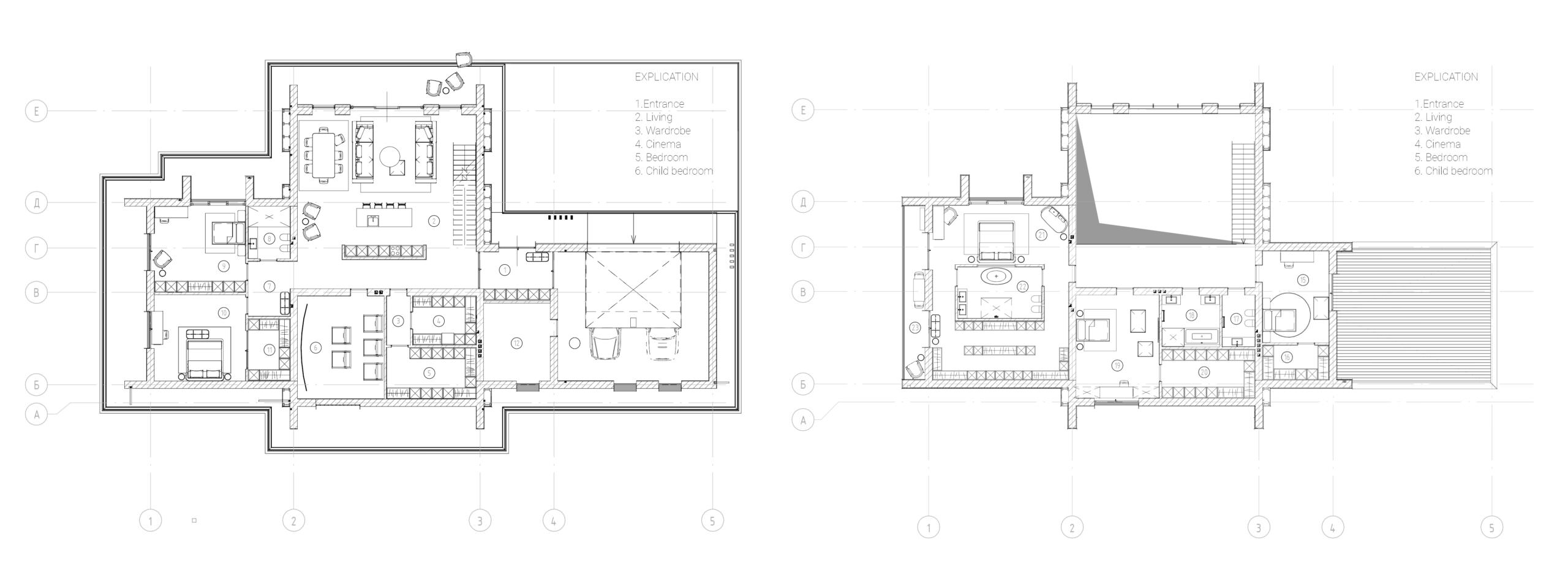
Планування

Темою проекту W House є поєднання складної форми і мінімалістичного оздоблення. Цей будинок монолітний і громіздкий, тому, щоб збалансувати композицію, його силует урізноманітнили фронтони. Вони ділять суцільний об’єм на менші частки, наближуючи будинок до людського масштабу. У оздобленні фасадів використано лише два матеріали: біла штукатурка і чорний фальцевий метал. Монохромне оздоблення найкраще виявляє складну форму будинку – чорні деталі на білому фоні, як, наприклад, віконні рами, створюють графічну картинку, у якій нічого не відволікає від ламаних ліній, пропорцій, світла і тіні.

Екстер'єр
Конструкція
Басейн
  • Факти і цифри
  • Команда
  • Об’єкт W House
  • Локація Україна, Харків
  • Рік 2020
  • Статус У процесі реалізації
Максим Муратов
Ольга Музика
Максим Канівець
Анна Андріанова