Ua
Екстер'єр

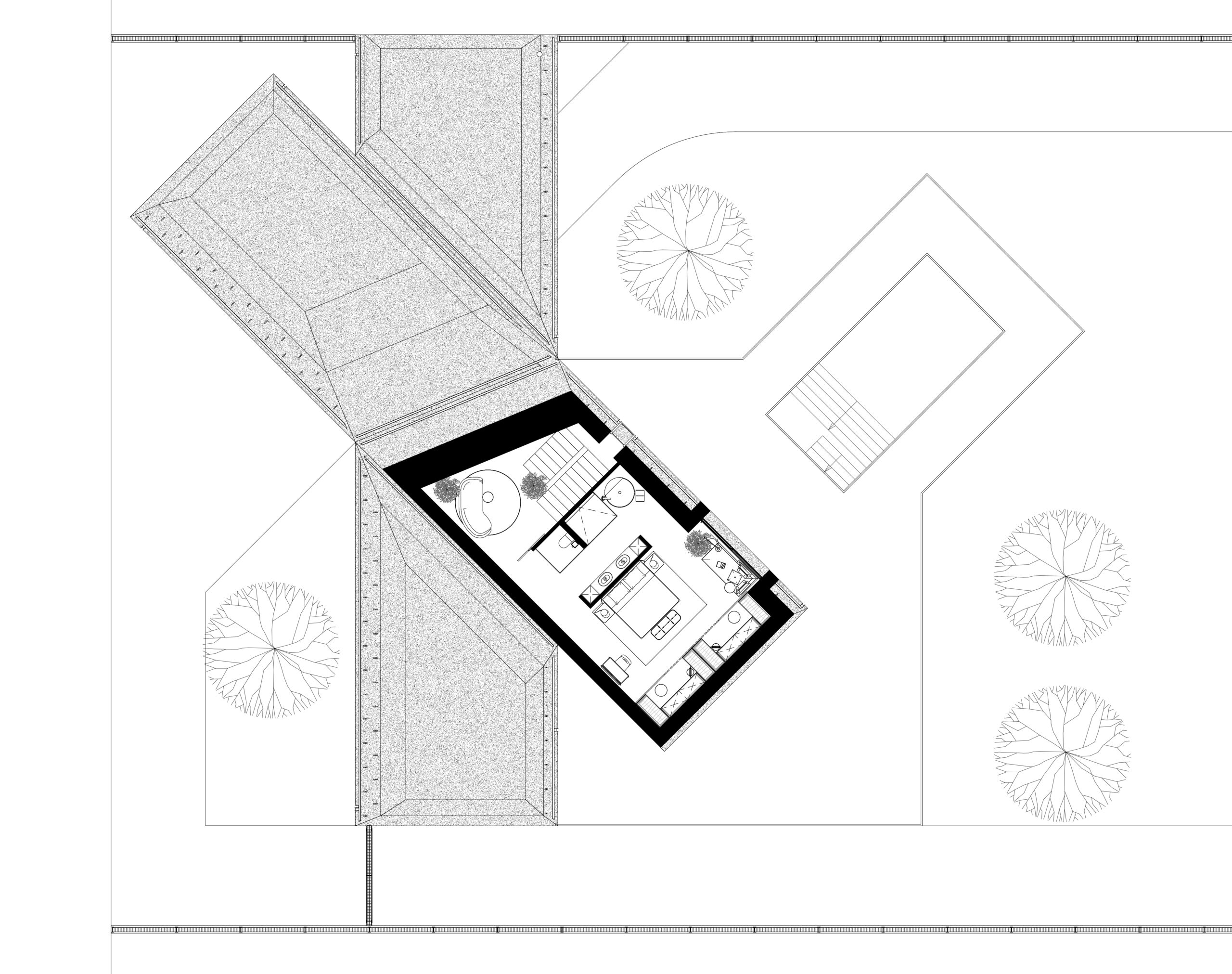
Цей сімейний будинок має дві прості, архетипні форми, що перетинають одна одну, утворюючи надзвичайно цікаве планувальне рішення. Таким чином зона відпочинку відокремлена від технічної зони. Об’єм будівлі складний та динамічний, при цьому гармонічно контрастуючий з простими, чіткими формами плану. Завдяки єдиному матеріалу фасадів та покрівель, ми створили мінімалістичну будівлю, що чудово гармонує з природним середовищем, в якому знаходиться.

Планування
  • Факти і цифри
  • Команда
  • Об’єкт House in the Forest
  • Локація Україна
  • Рік 2023
  • Статус проекту У процесі реалізації
  • Площа будинку 230 кв.м
Максим Муратов
Максим Канівець